Clermont-Ferrand, Appartement de 39 m2 de 136 525 € FAI

Référence : 251201
Ajouter dans mes favorisAjouter

Caractéristiques

Référence
251201
Prix
136 525 € FAI
Type
Appartement
Surface
39 m2
Nb pièces
2
Nb chambres
1
Nb Lots
20
Taxe foncière
1054 €
DPE
B
GES
C
Frais d'agence inclus
 
Charges mensuelles
55 €

Description du bien

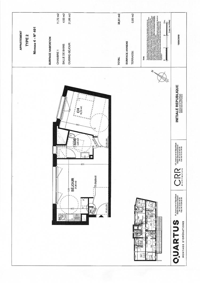
T2 NEUF – 38,51 m² – SECTEUR 1ER MAI/REPUBLIQUE

T2 NEUF – RÉSIDENCE DE STANDING – 38,51 m² – SECTEUR 1ER MAI/REPUBLIQUE

LE COMPTOIR DE L’IMMOBILIER vous propose à la vente : IDÉAL INVESTISSEUR ou PREMIER ACHAT

Situé au 4eme étage avec ascenseur d’une résidence récente de 2019 BBC et sécurisée, cet appartement T2 lumineux en parfait état de 38,51 m² offre un cadre de vie moderne et confortable à proximité immédiate des commodités, des transports et de la Place du 1er Mai.

Le logement se compose d’une entrée dégagement avec placard de rangement, d’un séjour lumineux ouvert sur une cuisine aménagée et équipée (plaque, hotte, four, mirco onde…). Une chambre indépendante avec un grand placard de rangement ainsi qu’une salle d’eau moderne avec douche à l’italienne et WC + PARKING. 

L’appartement est vendu loué, pour un loyer mensuel de 535.51 € + 40 € de provisions sur charges (eau froide, entretien et électricité des communs, TOM, ascenseur) avec régularisation annuelle.

  1. Confort & Équipements
  • Résidence récente de standing datant de 2019
  • Chauffage individuel gaz à condensation
  • Cuisine entièrement aménagée et équipée
  • Volets roulants électriques
  • Isolation RT2012 : phonique & thermique BBC (économies de chauffage)
  • Double vitrage
  • Ascenseur
  • Placard de rangement
  1. Stationnement
  • Un parking privatif vient compléter ce bien.
  1. Informations complémentaires
  • Surface : 38,51 m²
  • Taxe foncière : 1 054,05 €
  • Charges de copropriété : environ 670 €/an
  • Loyer : 535.51 € + 40 € charges
  • Résidence conforme RT2012 batiment BBC

Prix de vente : 136 525 € FAI, dont honoraires à charge acquéreur représentant 7,5% du prix de vente soit 9 525 € TTC.

 

 

Diagnostics

Bâtiment économe
  
B  
  
  
  
  
  

Bâtiment énergivore
en kWhan/m².an
Faible émission de GES*
C  
  
C  
  
  
  
  

Forte émission de GES*
* Gaz à effet de serre en KgeqCO2/m².an
Nous vous informons que ce site web utilise des cookies afin d'améliorer l'expérience utilisateur. en savoir plusaccepter